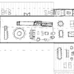
Project designed for a site in Ponta Grossa, in the southern zone of Porto Alegre, RS, Brazil. The program includes two sets of rental cabins and also features leisure and communal areas at the highest point of the site, offering a view of Lake Guaíba. Additionally, there is a dedicated event space with the Guaíba sunset as a backdrop.
The architecture of the cabin complexes follows a unified formal principle for all building typologies: it is based on two parallel solid prisms constructed in masonry, forming the sides of the structures. These prisms house infrastructure and wet areas, while the space between them is designated for the main living areas.



































