Projeto idealizado para um sítio na Ponta Grossa, zona sul de Porto Alegre, RS, Brasil. O programa prevê dois conjuntos de cabanas para locação e contempla também áreas de lazer e convívio comum na parte mais alta do terreno, de onde é possível avistar o Lago Guaíba. Além disso, há uma estrutura destinada a eventos, com o pôr do sol no Guaíba como pano de fundo.
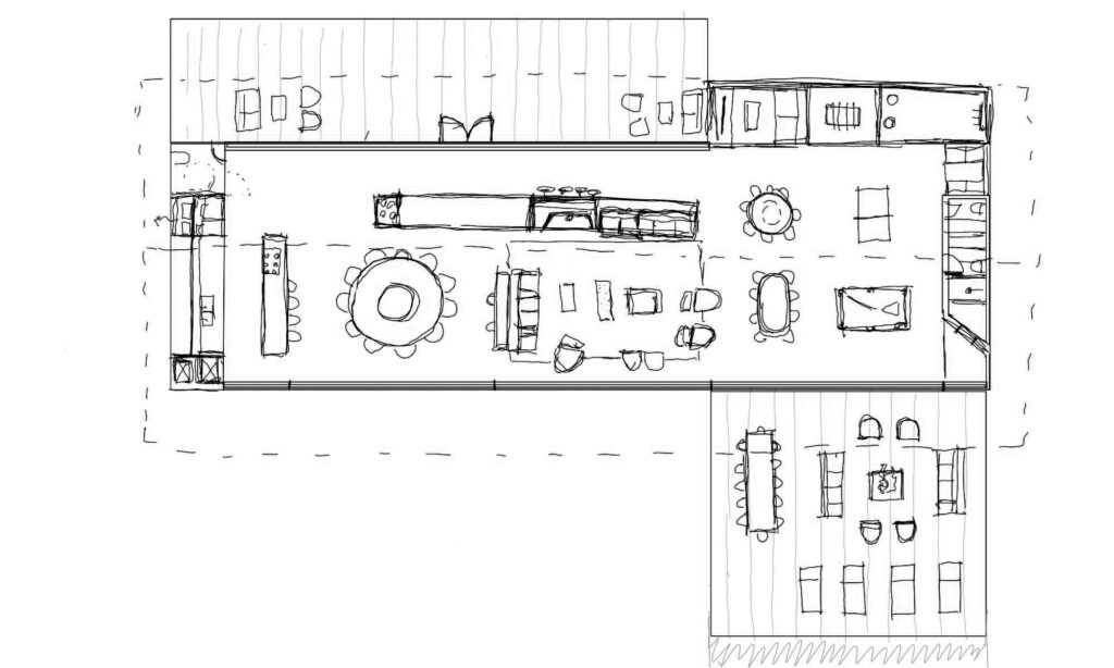
A arquitetura dos complexos de cabanas utiliza um mesmo princípio gerador da forma para todas as tipologias edificadas: parte de dois prismas sólidos paralelos construídos em alvenaria, que conformam as laterais das edificações. Esses prismas abrigam infraestrutura e áreas molhadas, enquanto o espaço entre eles é destinado aos espaços principais.



































