O concurso foi lançado em setembro de 2014 com o objetivo de construir, ao lado da Câmara Municipal, uma edificação que abrigasse a parte administrativa da construção existente: diretoria financeira, administrativa e geral. O atual prédio abrigaria somente as atividades relacionadas aos vereadores.
O terreno da construção é localizado na fachada posterior da Câmara Municipal e é cercado por árvores, com poucas construções no entorno próximo. O projeto proposto procura não se destacar em relação ao edifício existente e se relaciona através da adoção da mesma altura e da manutenção dos níveis dos pavimentos.
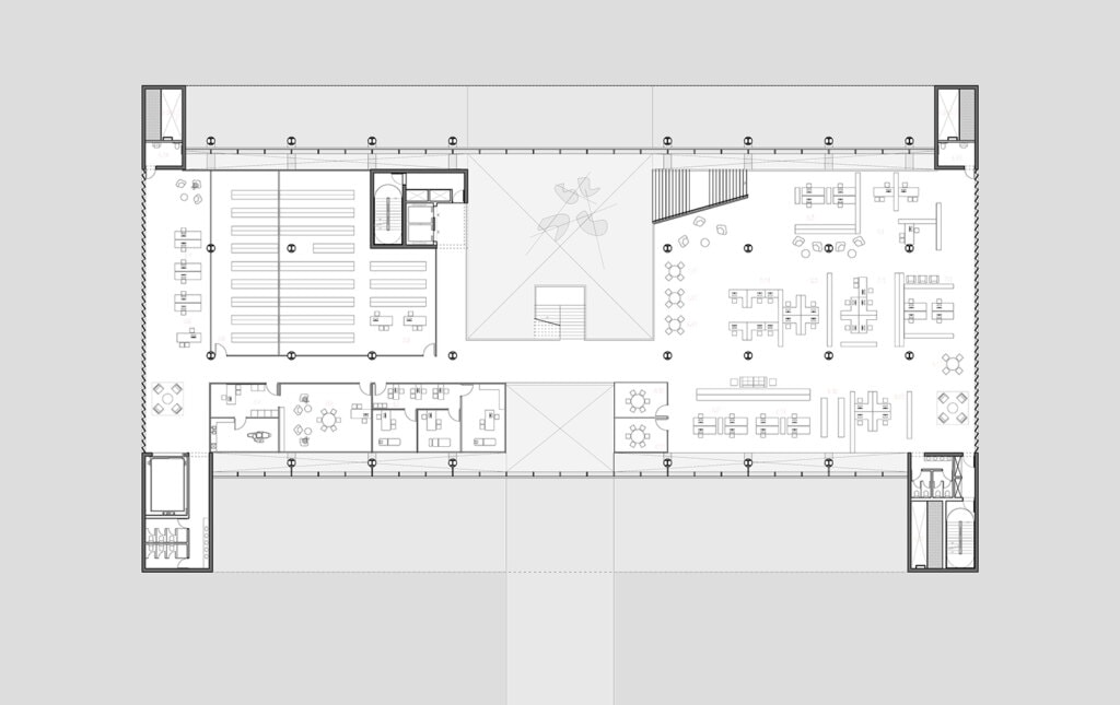
O acesso principal é feito através da passarela coberta que tem seu início no edifício da Câmara Municipal. O hall do projeto é posicionado junto à fachada sul, a passarela entra pelo interior da planta, proporcionando integração visual entre os diferentes níveis e maximizando a relação entre o edifício e o parque ao fundo.
Os setores funcionais são completamente integrados em plantas livres em todos os níveis, as áreas reservadas e de serviços são posicionadas nas fachadas, liberando o interior do edifício para as atividades corriqueiras e de uso intensivo.
Os cantos da edificação proposta possuem duas funções: função estrutural e função programática. A estrutura de concreto armado permite estabelecer a rigidez e contraventamento da estrutura de pilares e vigas de aço. Além disso, as quinas absorvem necessidade programáticas essenciais: instalações complementares, elevadores, escadas e banheiros.





























