Fazer oportuna a acomodação necessária dos espaços condominiais controlados na cidade é um desafio central para a disciplina de arquitetura. Provocado na legislação da cidade de Curitiba, o desenho que media a concomitância desses espaços reservados com o espaço de todos/as dá o fio da meada que tece a trama de decisões que permite tornar o desejo e a necessidade de morarmos juntos/as uma possível realidade ora apresentada.
A força do encontro de dois caminhos em uma esquina é aproveitada no projeto como uma oportunidade de solução para o espaço de comércio. Essa loja se protege com recuos estratégicos em relação ao perímetro da laje dos apartamentos que lhe cobre, de modo que o resultado é um amplo e convidativo espaço coberto no mesmo nível do passeio assinalando essa esquina como um ponto de encontro e como uma perspectiva aberta que torna amigável o outrora ameaçador ângulo agudo.
Dois gestos igualmente importantes estão vinculados a este espaço criado pelo projeto. O primeiro toma a forma de uma galeria peatonal coberta que se desenvolve ao longo da rua Amazonas, provendo abrigo aos pedestres, sombra às superfícies verticais e é arrematada por uma marquise que amplia o espaço coberto e facilita o embarque e desembarque em veículos. O segundo gesto é a implantação da praça pública ao lado da loja – essa contiguidade desejável cria uma relação de fortalecimento mútuo das atividades de comércio e lazer.
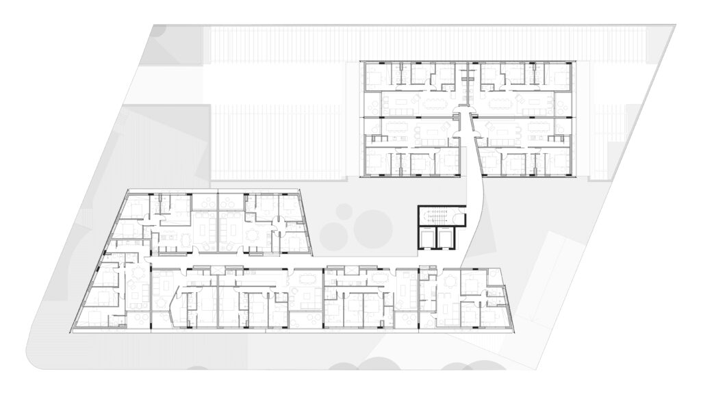
O caminho do sol rege a implantação da edificação. O posicionamento das residências no terreno busca maximizar a exposição ao sol do norte ao organizar o maior número de aberturas para esta orientação. Algumas unidades se desenvolvem em posição mais reservada em relação à rua, gozando de maior silêncio – sem, contudo, serem privadas de uma boa condição solar. Essa articulação proposta não apenas aumenta a privacidade e o conforto acústico das residências como também impede que o próprio edifício sombreie a si mesmo – viabilizando a premissa da insolação de todas as residências além de garantir espaços condominiais ensolarados no térreo.
A sutil desconexão entre os dois principais volumes configurados pelo partido adotado oportuniza o fluxo livre de ar fresco no sentido Leste-Oeste. A adoção dessa estratégia de circulação contínua de ar é fundamental para o sucesso das estratégias de conforto das habitações, garantindo um microclima agradável também para as circulações horizontais que oferecem visuais distintas daquelas dos apartamentos, o que torna o caminhar sempre mais convidativo – e ainda proporciona um ar de qualidade para as áreas verdes propostas no térreo.
As residências criadas para o projeto buscam uma organização eficiente e confortável dos espaços internos através de uma articulação geométrica legível e de uma estratégia de ocupação que anteveja distintas possibilidades de redistribuição dos espaços internos de acordo com os critérios e particularidades de cada morador/a. A organização da planta também levou em conta a otimização da distribuição dos serviços, priorizando o alinhamento dos shafts para distribuição hidráulica, elétrica e de telefonia, visando otimizar os sistemas e oportunizar maior flexibilidade por meio da amplitude dos ambientes.
Fator prioritário desde os desenhos iniciais, as amplas visuais disponíveis para todos os apartamentos. Nenhuma habitação possui aberturas das áreas sociais sobre as linhas de recuo obrigatório – todas as áreas sociais das residências têm visuais longas. Elas permitem maior incidência de luz natural e melhoram a sensação de bem-estar e privacidade dos/as moradores/as. Aberturas altas filtradas por aletas simples nas fachadas secundárias nos trechos de lavanderia e cozinhas permitem que mesmo em uma tipologia com corredores mais longos se viabilize a ventilação cruzada das unidades.
As aproximações programáticas são importantes não apenas nos espaços públicos, mas também nas áreas condominiais. O térreo organiza os espaços condominiais fechados como salão de festas, espaço gourmet, academia e coworking. Todos eles se conectam diretamente com jardins condominiais, o que, para além de tornar a experiência muito mais agradável, amplia grandemente as suas possibilidades de uso e o multitasking.
O projeto se preocupa em aproveitar os recursos naturais, como sol e água da chuva, incorporando essa dimensão durante o processo de criação e configuração dos espaços. O aproveitamento da energia solar é otimizado pelo posicionamento das placas solares de acordo com a melhor relação de aproveitamento da cobertura da edificação e da orientação solar. Propõe-se também a captação da água da chuva e o emprego de cisternas para seu armazenamento e uso em rega de jardins, lavagem de pisos e sanitários. A implantação prevê um amplo espaço de jardim sobre a laje do estacionamento que contribui para o sistema de contenção de cheias e a redução do escoamento pluvial para o sistema público. Nesse sentido, o paisagismo adotado exerce dupla função: a estética contemplativa, que contribui para o bem-estar dos moradores, e também a de auxiliar no escoamento da água da chuva.

































